Homes
ADU
Process
Our Process
FAQ
Customize
About
Manufacturers
About Us
Learning Center
Our Difference
Customers
ADU homes
Blog
Map
Your Location:
,
change location
1-800-450-0157
Locations
Contact
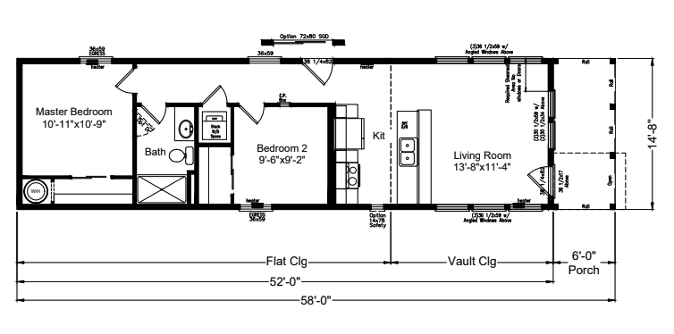
15522C
The Cabana Home
$77,850*
Click here to see 3D tour
SQFT
762
Beds
2
Bath
1
Area
52x15
Section
1
Homes
>
Palm Harbor
>
The Cabana
Detailed view
Previous
Next
Download floorplan
or
view online
Do you want to see more?
It's possible with our virtual tour.
Start virtual tour now
Leave this field blank
Request info
First name *
Last name *
Phone
Email *
City *
State *
Select a State
Alabama
Alaska
Arizona
Arkansas
California
Colorado
Connecticut
Delaware
District Of Columbia
Florida
Georgia
Hawaii
Idaho
Illinois
Indiana
Iowa
Kansas
Kentucky
Louisiana
Maine
Maryland
Massachusetts
Michigan
Minnesota
Mississippi
Missouri
Montana
Nebraska
Nevada
New Hampshire
New Jersey
New Mexico
New York
North Carolina
North Dakota
Ohio
Oklahoma
Oregon
Pennsylvania
Rhode Island
South Carolina
South Dakota
Tennessee
Texas
Utah
Vermont
Virginia
Washington
West Virginia
Wisconsin
Wyoming
Location *
Select a Location
Spanish Trails MHP (Casa Grande, AZ)
Payson, AZ
Chandler, Arizona
Tucson, Arizona
Buckeye, Arizona
Sacramento, California
Perris, California
Merced, California
Modesto, California
Espanola, New Mexico
Farmington, New Mexico
Albuquerque, New Mexico
Albany, Oregon
Redmond, Oregon
Mt. Vernon, Washington
Alamosa, Colorado
Message *
Get Info
View similar Homes to
The Cabana
SQFT
896
Beds
1
Bath
2
Area
16x56
Sections
1
SQFT
924
Beds
3
Bath
2
Area
14x66
Sections
1
SQFT
840
Beds
2
Bath
2
Area
14x60
Sections
1
×
Change your location
GO
USE CURRENT
×
Online price is for the base model only (no options) and does not include setup and delivery or sales tax.
Pictures may not represent the actual model on display.