K3060A
K3060A

K3060A
K3070A
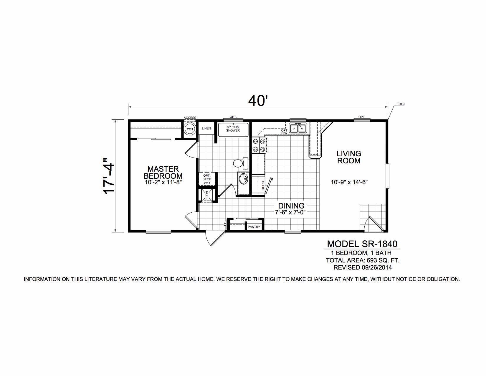
SR1840
K2748A
K2748A
RC2756A
K2756A
K3160A
RC2756B
K3158A