River Front
4P4S100

4P4S100
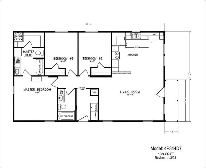
N4P344D7
4P36S58
HD3070P
TEM28663A
DV101
HD4060CAS
HIP24523A
CL28563F
DV103