Somerton
AF2856E

AF2856E
AF3260HDE
HD30643B
SR2440
TEM16562A
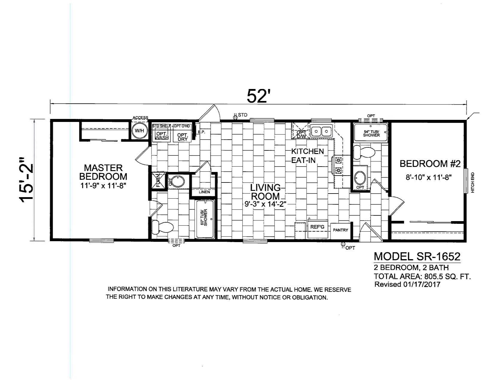
SR1652A
3104G28563B
TEM28765H
SC12
SR1640