Availabile Manufacturers in Washington
Price Range
tooltip
$k $k
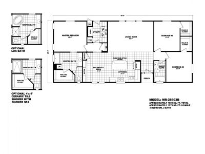
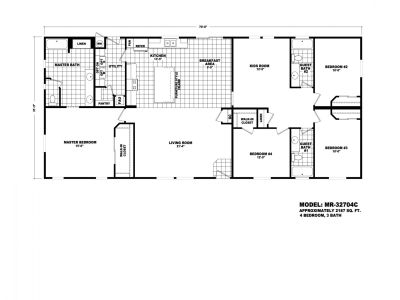
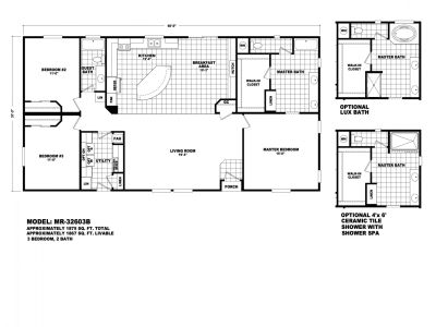
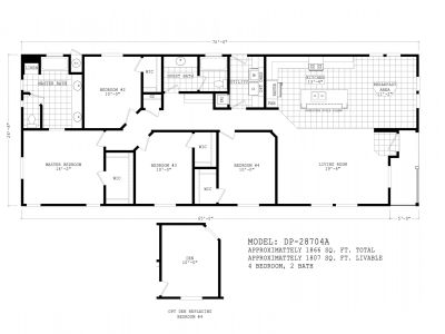
SQUARE FOOTAGE
tooltip
Bedrooms
Bathrooms
Sections
MODEL NAME OR #

*Online price is for the base model only (no options) and does not include setup and delivery or sales tax. Pictures may not represent the actual model on display.

See also other manufactured houses in Washington by Cavco:

REQUEST INFO